综合保税区围网安装施工技术要求
更新日期:2022-12-03 点击量:
综合保税区围网安装施工技术要求

一、综合保税区围网基础工程
1.若围网基础为挡土墙,可将挡土墙项面处理后加围网。
2.围网基础持力层根据现场开挖实际情况确定。
3.当持力层为土层时,如果此范围为回填区时,要求此部分基底以下1,0m范围填士压实,压实系数不小0.94。基底以下2m范围填土压实系数不小于0.9,且不能低于相邻道路压实系数。基础持力层为基岩时,要求嵌岩深度不小于0.3m。
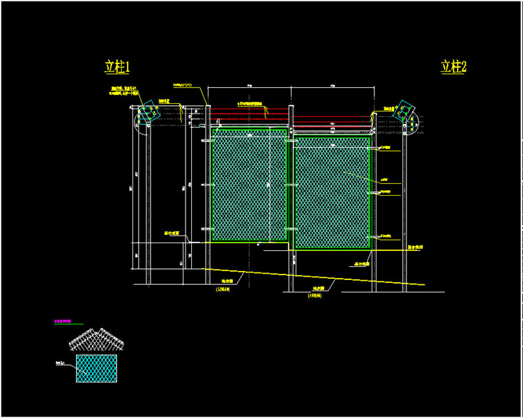
4.基础混凝土强度为C25,垫层调凝土强度为:C20。
5.围网每两开间设一过水洞,涧宽120,洞高60,洞底与地面同高。洞内随砌随粉20厚1:2水泥砂浆。
6.当围墙基础持力层有变化时,应设缝脱开。
二、综合保税区围网油漆涂料工程
1.金属围网须经表面热镀锌和浸塑防腐防锈处理,锌层平均厚度70微米,塑层采用浸塑处理,厚度在500微米左右。
2.金属围网所有铁件刷防锈漆二道,面漆颜色为墨绿色。
三、本设计所注尺寸,总图和标高以米为单位,除有特别标注外其余均以毫米为单位。
四、海关监管作业场所(场地)区内与区外之间应设置隔离围墙,隔离围墙应为不间断全封闭式幅离设施,不有破损和缺口。隔离围墙距地面的总净高度不低于3米。距隔离围墙内、外直径5米内不得有永久性建筑(公共配套设施除外)。地面平整、硬化,无痛煤生物草生地,场地及周围环境应具备有效的防控鼠类的设施,符合国家标准《病蝶生物综合管理技术规范环境治理鼠类》( GB /T31712)的相关要求。围网基础排水孔可采用金属孔网或金属格网封闭、混凝土封堵,封堵封闭原则为向道路方向排水的孔洞则采用金属孔网或金属格网封闭,不能向道路侧排水的孔洞则用混凝上封堵进行封堵(直径<6mm金属孔网,边长<6mm金属格网)。
五、围网内外地面若有高差,则通过放坡放至同一标高,围网基台不得兼做挡墙。
六、围网内外1米范围内地面应进行压实和平整处理,压实系数不小于0.95。
七、围网应在生产厂家招标工作完成后,进行试验段生产,并于综保区现场进行试验段安装,必须由业主会同海关对试验段围网进行现场检验,确认同意后,方可正式生产安装。
八、本图未尽事宜按照《海关监管作业场所(场地)设置规范》等相关要求执行。
九、本项目围网使用年限不小于10年。
相关新闻
- 2025-02-18道路护栏的保护方法
- 2023-05-16广州绕城高速公路防眩网项目
- 2023-05-16宁夏高速公路焊接网隔离栅技术图纸支持
- 2023-05-16G331线布尔津至哈巴河公路刺钢丝隔离栅图纸
- 2023-02-25监狱刀刺网围墙生产厂家




