山区野生动物防护栏
更新日期:2022-01-11 点击量:
山区野生动物防护栏设计要求
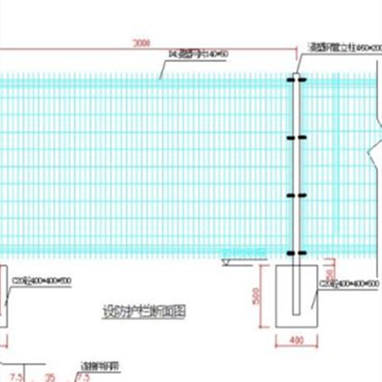
1、本图山区野生动物防护栏尺寸以毫米为单位,立柱与网片连接螺栓采用M8*25mm防盗螺栓,基础采用C20预制混凝土(规格为400*400*500mm)。
2、山区野生动物防护栏网围栏埋设在路基坡脚处,涵洞处由两侧沿路基边坡斜插至涵顶完成封闭。明涵涵顶立柱通过焊接法兰盘,钻设膨胀螺栓确保埋设坚固。
3、山区野生动物防护栏每1km设置工务维修通道门,门宽3m,选择地势平缓地段或有桥涵检查台阶处设置。
4、山区野生动物防护栏网片底边缘距地面高为50mm。
5、山区野生动物防护栏隧道门采用1.5m双扇门带框带锁耳网片,框子采用浸塑前40*20mm浸塑方钢,锁耳采用浸塑前为6mm铁线。
6、山区野生动物防护栏钢管立柱浸塑前采用直径为50mm,壁厚3.5mm焊接钢管,立柱两端采用浸塑前为2mm厚铁片焊接封堵后整体浸塑。
7、山区野生动物防护栏网片丝网浸塑前为4mm。
8、山区野生动物防护栏立柱与网片连接件钢带浸塑前厚度为5mm,每根钢管立柱单侧设置4个钢带。
9、山区野生动物防护栏网片上下两端各增加3根间距为20mm的浸塑网丝。

上一篇:萧山临浦体育馆围网 艾美3D/I围栏 I型立柱防盗围网 下一篇:刀片刺绳防攀爬围网
相关新闻
- 2022-01-11山区野生动物防护栏
- 2025-02-18道路护栏的保护方法
- 2023-05-16广州绕城高速公路防眩网项目
- 2023-05-16宁夏高速公路焊接网隔离栅技术图纸支持
- 2023-05-16G331线布尔津至哈巴河公路刺钢丝隔离栅图纸




