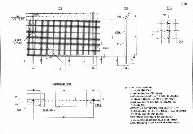
焊接网隔离栅
更新日期:2021-12-04 点击量:
一、焊接网隔离栅设计说明
1.本图焊接网隔离栅尺寸均以mm计,颜色为墨绿色。
2.焊接网隔离栅适用于需要隔离围界的场所。
3.焊接网隔离栅立柱及斜撑基础为现浇素混凝土或C20预制混凝土墩。
4.焊接网隔离栅每隔3m设置一个燕尾立柱,每隔30m设置一组纵向斜撑, 安装起始和末端以及改变方向处都要安装拉紧柱和斜撑柱,如有特殊情况,立柱间距可作适当调整。
5.焊接网隔离栅的立柱采用先热浸镀锌再喷塑处理;网片采用热浸镀锌后热浸塑PVC的防腐处理措施。
6.焊接网隔离栅网片采用2.95±0.12的冷拉钢丝焊接而成,横丝抗拉强度应大于400N/mm²,焊接网片的纵丝抗拉强度应大于600N/mm²,焊点抗拉力不小于1500N,每个网孔的横丝应有一个弧以增加侧面抗冲击强度以及调整网面局部张力。
7.焊接网隔离栅网片与立柱采用高强不锈钢卡子现场连接,网面连接前须保证被张紧,张紧力为15kg/水平钢丝;安装过后的网面须垂直于地面、表面平整不松弛不倾斜。
8.所有焊接网隔离栅立柱应加盖柱帽, 0.3m弯臂部分采用3道刺钢丝增加隔离栅的安全性能。
二、焊接网隔离栅参数说明
1、立柱,燕尾立柱Φ48*1.5mm;
2、斜支撑,Φ38*1.5mm;
3、横丝,Φ2.95mm;
4、竖丝,Φ2.95mm;
5、刺钢丝,Φ2.8mm;
6、不锈钢卡子,Φ3.5mm。

焊接网隔离栅又叫电焊网隔离栅,是一种比较常用的隔离防护产品。基本构成组件包括:焊接网网片,钢管立柱,连接防盗螺丝等。
按结构划分可分为有边框和无边框两种,边框一般采用20*30mm,25*25mm,30*50mm方管焊接,常用的方管厚度有1.0mm,1.2mm,1.5mm,2.0mm等。立柱的规格就比较多了些有方管也有圆管的,直径一般范围在48-100mm,厚度范围大概在1.5-3.0mm左右,太厚了没必要会造成资源浪费,太薄了就不够结实了。
焊接网隔离栅的用途是非常广泛的,我们的日常生活中到处都能看到它的影子。公路的中间隔离带,别墅小区围墙,学校体育场隔离墙,工厂车间隔离墙,隔离墙,超市理货区等等很多,我就不在这里一一举例了。
2.焊接网隔离栅所有钢构件均应作先热浸镀锌再浸塑的防腐处理措施,塑层颜色为绿色;
3.焊接隔离栅立柱和斜撑柱的内外表面镀锌量为275g/㎡,浸塑层材料为聚酯,塑层厚度不低于60μm;
4.焊接网隔离栅网片表面镀锌量为275g/㎡,浸塑层的材料为PVC,塑层厚度不小于0.2mm;
5.焊接网的钢丝直径终为2.95±0.16mm,横丝抗拉强度应大于500N/m㎡,
焊接网片的纵丝抗拉强度应大于700 N/m㎡;
6.焊接网隔离栅立柱采用焊接管制作,抗拉强度应大于400 N/m㎡;
7.焊接网隔离栅塑层必须保证均匀、亮泽、不得存在针孔、流淌堆积、烧焦裂解等浸塑缺陷,应保证先加工焊接后作浸塑处理。
8.焊接网隔离栅的立柱间距为3.0M,端头立柱设置间距为30m,并配合设置一组纵向斜撑,凡拐角处应设置一个横向斜撑柱;
9.在跨越天然障碍物时,端头处应设置横向和纵向斜撑;
10.端头立柱未连接斜撑的空余开孔应封堵死,以防止雨水进入。
相关新闻
- 2021-12-04焊接网隔离栅
- 2025-02-18道路护栏的保护方法
- 2023-05-16广州绕城高速公路防眩网项目
- 2023-05-16宁夏高速公路焊接网隔离栅技术图纸支持
- 2023-05-16G331线布尔津至哈巴河公路刺钢丝隔离栅图纸




