浸塑电焊网隔离栅
更新日期:2021-11-29 点击量:
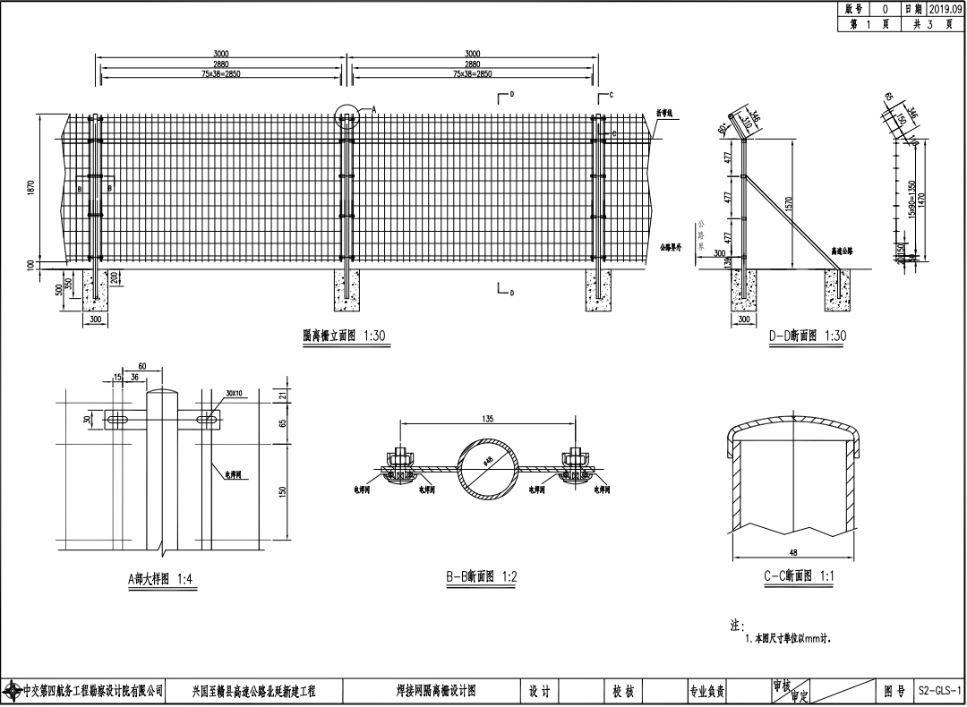
1.本图尺寸单位均以mm计。
2.电焊网单片加工尺寸为2880x1816mm,其拐角部分应一次折弯形成。
3.砼基础采用预制,在网架结构就位调顺后,其预留孔应用10#水泥砂桨封填严密。
4.电焊网用Φ4mm的低碳制丝制造,并应符合《一般用途低碳钢丝》(GB343-82)、《一般用途热镀锌低碳钢丝》(YB243-65)的规定。
5.隔高栅每隔24m间距设置一个斜撑。
6.斜撑与抱箍应首先焊接成整体,然后采用下述防腐方法进行防腐处理。
7.立柱材料性能应符合GB700,尺寸规格应符合GB6723的规定。
8.施焊前,要求各单体矫正平直并去毛刺及锈迹。
9.焊接部位要求过渡圆滑,无焊渣,虚焊,气孔等缺陷。
10.电焊网隔离栅采用镀锌后镀塑的防腐形式。第一层热浸镀锌所用的锌应为《锌锭》(GB/T470)中规定的特一号或一号锌,网片镀锌量:为90g/㎡,紧固件、连接件镀锌量为120g/㎡;立柱、横梁等镀锌量为270g/㎡。第二层非金属镀层可为聚(氯)乙烯或聚酯,网片聚(氯)乙烯材料厚度为0.3mm,其它聚(氯)乙烯材料厚度为0.4mm,聚酯材料厚度为0.1mm。紧固件连接件也可采用一层热浸镀锌的防腐方法,镀锌量为350g/㎡。
11.镀塑层应满足:(1)均匀光滑、连续、无内眼可分辨的小孔、空间、孔隙、裂缝、脱皮及其它有害缺陷。(2)镀层应附着良好,在人工加速实验后,镀层不允许产生裂缝、破损等损伤现象及褪色。
12.若遇土质疏松地段,混凝土基础坑要夯实处理后方可安装。

相关新闻
- 2021-11-29浸塑电焊网隔离栅
- 2025-02-18道路护栏的保护方法
- 2023-05-16广州绕城高速公路防眩网项目
- 2023-05-16宁夏高速公路焊接网隔离栅技术图纸支持
- 2023-05-16G331线布尔津至哈巴河公路刺钢丝隔离栅图纸




