煤炭码头口岸封关围网价格多少钱
更新日期:2023-01-30 点击量:

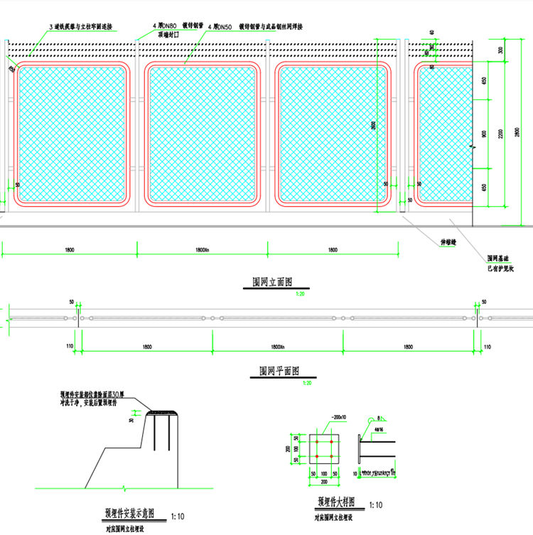
一、煤炭码头口岸封关围网设计说明
1、围网设计依据:依据业主确定方案及总图要求设计编制。
2、围网绝对标高:围网标高、围网长度及定位详见围网平面布置图(围网超过20米设伸缩缝)。
3、围网基础:原有水工护笼坎作为围网基础。
4、围网其他注意事项:图中尺寸单位在本设计说明及图纸中均以毫米计,标高以米计;图中未注明事宜均按现行建筑工程及验收技术规范进行施工;施工中应注意与各专业图纸配合并做好预埋件及预留孔洞。
二、煤炭码头口岸封关围网防雷接地说明
1、围网的接地系统的施工要求参见GB50057建筑物防雷设计规范相关部分。
2、围网的接地系统利用围网的固定钢柱作为接闪器和防雷接地引下线,并将围网固定钢柱顶端和底端与防雷装置连接。同时要求组成围网的所有钢结构都应做好焊接并做好防雷侧击和等电位连接的措施。
3、在围网基础底部通长敷设1根40x4镀锌扁钢作为接地体,间距10米左右引上作为接地引上线系统此接地上引线(-40x4镀锌扁钢)。在基础上部与防风网的柱底预埋螺栓焊接连接,并通过柱底预埋钢板与防风网的钢立柱相焊接,形成防风网的自然接地系统。
4、防风网的自然接地系统通过防风网的钢结构相连接形成防风网接地系统,此接地系统实测防雷接地保护电阻不大于10欧姆。
三、煤炭码头口岸封关围网数据说明
1、立柱,DN80镀锌钢管,壁厚4mm。
2、边框,DN50镀锌钢管,壁厚4mm。
3、网格,50*50mm斜方孔焊接网片。
4、网丝,5.0mm镀锌钢丝。
5、安装高度,2600mm。
6、安装间距,1800mm。
相关新闻
- 2025-02-18道路护栏的保护方法
- 2023-05-16广州绕城高速公路防眩网项目
- 2023-05-16宁夏高速公路焊接网隔离栅技术图纸支持
- 2023-05-16G331线布尔津至哈巴河公路刺钢丝隔离栅图纸
- 2023-02-25监狱刀刺网围墙生产厂家




