编织网隔离栅生产制造厂家
更新日期:2022-12-12 点击量:

一、编织网隔离栅布设原则
编织网隔离栅的主要作用是将公路用地隔离出来,同时将可能影响交通安全的人和畜等与高速公路分离开来,保证高速公路的正常运营。本路编织网隔离栅在公路地界线以内 30cm 处设置,全线进行封闭布设,在遇到桥梁、通道或天然障碍物时断开封死,不留有人、畜进入的空隙,如遇到小涵洞或小障碍物时,编织网隔离栅则直接跨过。根据本路在山东省公路网中的位置,以及本路段的实际情况,综合考虑经济性、实用性和美观性,以及沿线村镇的稠密程度,本设计主线普通路段采用编织网隔离栅。现场既有的旧隔离栅可用于施工过程中的临时隔离用。
二、编织网隔离栅结构类型
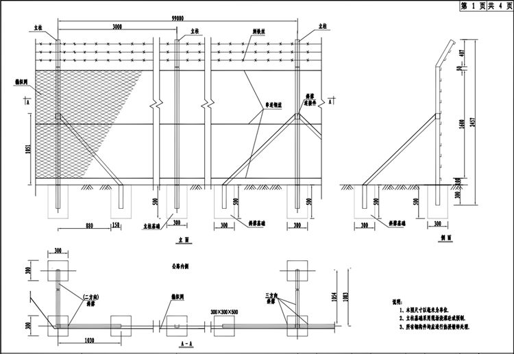
编织网隔离栅的立柱采用冷弯等边槽钢,编织网孔尺寸160*80mm,立柱间距为3m。每隔99m设置一处三向斜撑,凡拐角处均应设置单向斜撑。在跨越天然障碍时,编织网隔离栅的端头立柱均应设置垂直双向斜撑。编织网隔离栅的所有钢构件均应进行热浸镀锌处理,立柱、斜撑等构件的镀锌量为600g/㎡,螺栓、螺母等连接件的镀锌量为350g/㎡,钢丝的镀锌量为120g/㎡。热浸镀锌所用的锌应为《锌锭》(GB470-2008)中所规定的Zn99.995号锌。浸塑材料采用聚乙烯(PE)高分子涂料,立柱、斜撑浸塑层厚度>0.25mm,网片浸塑层厚度>0.15mm,颜色为绿色,全线色号应统一。防腐要求须满足《公路交通工程钢构件防腐技术条件》(GB/T 18226-2015)的规定,涂层性能应满足《公路用防腐蚀粉末涂料及涂层》(JT/T600.1-2004~JT/T600.4-2004)的规定和要求。立柱基础采用 C20 预制素混凝土,斜撑基础为 C20 现浇素混凝土。
三、编织网隔离栅技术要求及施工注意事项
1.编织网隔离栅的安装施工一般宜在路基施工完成以后,在不影响工程施工的情况下,尽早开始;
2.编织网隔离栅安装施工前应做出详细的施工组织设计;
3.编织网隔离栅应严格按设计图进行施工放样,先定中心线,然后按设计的柱距定出柱位。
4.编织网隔离栅每个柱位均应按设计要求确定高程。并与公路界地形相协调,必要时,应按规定进行整修;
5.编织网隔离栅柱孔深度应符合设计要求,挖到设计要求深度后,应将基底清净,经检验合格后,方准进行下道工序;
6.编织网隔离栅柱坑底可垫混凝土,放入立柱后,检查柱顶标高,并用临时支撑固定立柱,检查其垂直度;
7.编织网隔离栅立柱的埋设,应分段进行,先埋两端的立柱,然后拉线埋设中间立柱。立柱纵向应在一条直线上,不得出现参差不齐的现象。柱顶应平顺,不得出现高低不平的情况;
8.编织网隔离栅立柱的埋置深度,地面高度、垂直度检查无误后,方可浇灌混凝土,分层捣实;
9.编织网隔离栅网片安装要求网面平整,无明显凹凸现象,框架与立柱连接牢固,整体连接平顺。网片安装完毕后,立柱基础均应进行最后夯实处理;
10.编织网隔离栅立柱及网片钢丝的强度均应满足国家标准要求。
相关新闻
- 2025-02-18道路护栏的保护方法
- 2023-05-16广州绕城高速公路防眩网项目
- 2023-05-16宁夏高速公路焊接网隔离栅技术图纸支持
- 2023-05-16G331线布尔津至哈巴河公路刺钢丝隔离栅图纸
- 2023-02-25监狱刀刺网围墙生产厂家




