钢丝网围栏生产制造厂家
更新日期:2022-12-08 点击量:

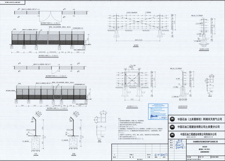
一、钢丝网围栏一般介绍:
1. 钢丝网围栏所有露明铁件: 防锈漆一道,绿色面漆两道。
2.采用钢丝将高镀锌铁皮挡风沙板固定在钢丝网围栏上。
3.围墙立柱网片连接件及附件由厂家自带。
4.图中未注明尺寸均以mm计。
5.基础防腐做法:所有基础垫层下设150mm沥青灌碎石,压实系数不小于0.95;宽度超出基础垫层每边200mm;与土壤接触的基础外表面均涂刷2道冷底子油,3道热沥青防腐,厚度不小于1mm。
6.本围墙用于无人值守集气站、单井站、阀室、放空区,布置位置详见总平面及竖向布置图。
7.围栏立柱基础顶面高出地面50mm。
8.围栏立柱及其他构件钢材力学性能不低于Q235- B。
二、钢丝网围栏详细参数:
1.网格,75*75mm;
2.网丝,4.5mm;
3.边框,20*30*2.0mm;
4.一般立柱,Φ60*3.0mm;
5.大门立柱,Φ104*3.25mm。
上一篇:防护栅栏围网生产厂家 下一篇:桃型柱桥梁防抛网生产厂家
相关新闻
- 2025-02-18道路护栏的保护方法
- 2023-05-16广州绕城高速公路防眩网项目
- 2023-05-16宁夏高速公路焊接网隔离栅技术图纸支持
- 2023-05-16G331线布尔津至哈巴河公路刺钢丝隔离栅图纸
- 2023-02-25监狱刀刺网围墙生产厂家




