热浸镀锌静电喷涂钢筋网围界厂家
更新日期:2022-12-06 点击量:

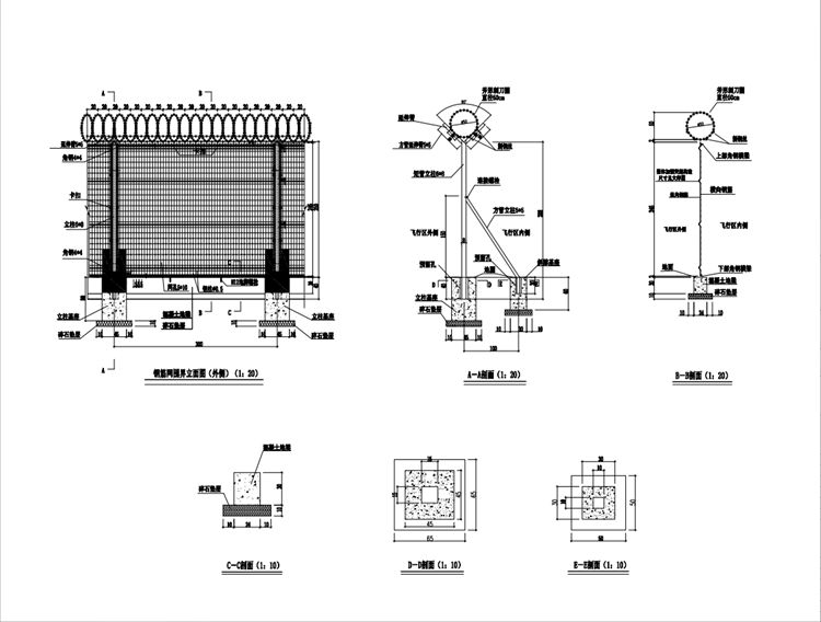
1、本图尺寸除注明外均以厘米计。
2、围界围栏内侧、外侧的净高度均应不低于2.5m,内外双层围界采用相同的结构形式。
3、围界围栏对外面应每150m设有醒目的禁止翻越警告标识牌,全场约设置68个标识牌,标识牌内容应清晰可见,警告标识牌具体做法由建设单位根据现场情况确定。
4、围界围栏形式采用钢筋网结构形式,其金属部分要求进行除锈、防腐处理,防腐年限不少于8年。其具体尺寸和安装形式应符合《民用运输机场安全保卫设施》(MH/T 7003-2017) 中的相关规定。图中围界结构形式仅为示意,最终由建设单位招标确定。
5、围界地梁和基座采用C20现浇水泥混凝土,地梁每隔9米设置一条施工缝,施工缝采用20mm高压低发泡聚乙烯闭孔泡沫板填充;斜撑的基座采用C20水泥混凝土预制,预留孔在立柱与斜撑安放后用C20细石混凝土灌实;所有基座和地梁的垫层采用粒径0-5cm的级配碎石。
6、碎石垫层下土基及开槽两侧回填土压实度要求不小于0.90 (重型压实法)。
7、图中围界总高度为3.0m(含刺笼),立柱间距为3. 0m,为确保围界安置后的稳固,要求每2个立柱设一道斜撑,转折处每个立柱设一道斜撑。
8、钢筋网采用Q235冷拉低碳钢丝电焊网并经镀层防腐处理,要求防腐处理前的冷拉低碳钢丝直径不小于5m,抗拉强度应达到400MPa,焊点抗拉力应达到3000N。立柱、斜撑及延伸臂采用由热轧、冷轧钢带直缝焊接而成的矩形钢管并作内外防腐处理,要求钢带抗拉强度应达到375MPao刺刀圈内芯为直径2.5m的冷拉低碳钢丝并经防腐处理,外面裹覆经防腐处理的刀片圈,刀片的刀口宽度及间距均为10~15mmm。 刺钢丝的股线由直径为2.2mm的两股镀锌钢丝捻扎而成并经防腐处理,镀锌钢丝抗拉强度应达到400MPa,刺线材料要求同股线,要求每个刺结有四个刺,刺结间距为102mm,刺线缠绕股线不得少于1.5圈,刺结间的股线捻数不少于4。剌刀圈与刺钢丝采用不锈钢卡子连接,沿长度方向每隔500mm设4个卡子连接。
9、图中立柱截面尺寸为80X60X2.5mm、斜撑和延伸臂截面尺寸为50X50X2.0mm。钢筋网片网格尺寸为100X50mm (中到中),刺刀圈直径为500mm。
10、图中立柱顶部应加盖柱帽,立柱与钢筋网、立柱与斜撑及立柱与延伸臂的连接采用防盗形式并经防腐处理。
相关新闻
- 2025-02-18道路护栏的保护方法
- 2023-05-16广州绕城高速公路防眩网项目
- 2023-05-16宁夏高速公路焊接网隔离栅技术图纸支持
- 2023-05-16G331线布尔津至哈巴河公路刺钢丝隔离栅图纸
- 2023-02-25监狱刀刺网围墙生产厂家




