桥梁两侧防落物网生产厂家
更新日期:2022-12-05 点击量:

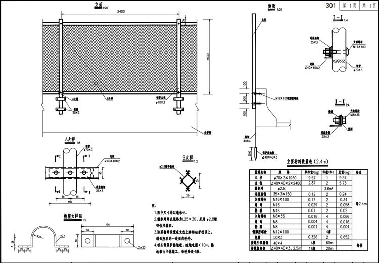
一、桥梁两侧防落物网一般构造
在本路跨越其它高速公路、国省道、二级及以上道路,以及上跨本路的桥梁两侧均设置防落物网,设置长度为下穿公路宽度并在两端各向路外延长10m。防落物网采用编制网形式,颜色为果绿色(劳氏色卡 RAL 6029)。防落物网做防雷接地处理,接地电阻小于 10Ω。所有钢构件均应进行热浸镀锌处理后浸塑处理,螺栓、螺母、垫圈等连接件的镀锌量为350g/m2 ,其它构件为 600g/m2。涂塑层厚度应>0.25mm。主线下穿铁路时,建议在铁路上设置与公路桥投影面积及以外各 20m 的铁路桥两侧范围内,由于公路相关规范中的防落物网不具备防砟功能,采用铁路防抛网(共 92 米),且需在现有铁路桥梁护栏上实施。
二、桥梁两侧防落物网参数要求
1.图中尺寸均以毫米计。
2.编织网网孔规格为L25X30,采用φ2.8镀锌铁丝编织。
3.防落物网设置在支线.上跨桥砼护栏顶上,螺母所在的一边面向桥外。
4.桥头做保护接地极,接地电阻<10Ω,接地极由主体施工,每桥头设4根。
上一篇:高速公路隔离栅设计生产安装规范 下一篇:图纸定制高速公路隔离栅
相关新闻
- 2025-02-18道路护栏的保护方法
- 2023-05-16广州绕城高速公路防眩网项目
- 2023-05-16宁夏高速公路焊接网隔离栅技术图纸支持
- 2023-05-16G331线布尔津至哈巴河公路刺钢丝隔离栅图纸
- 2023-02-25监狱刀刺网围墙生产厂家




