通用运输机场防攀爬隔离网生产制造要求
更新日期:2022-12-02 点击量:

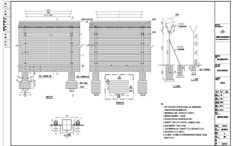
通用运输机场防攀爬隔离网生产制造要求:
1.本图通用运输机场防攀爬隔离网尺寸单位均以毫米计,图中数字标识详见场施一附属一钢筋网围界结构图,围界围栏外应设有醒目的禁止翻越警告标识牌。
2.通用运输机场防攀爬隔离网除基础、地梁外,其余构件均为生产厂家定型产品。
3.通用运输机场防攀爬隔离网采用喷塑钢筋网片,立柱亦喷塑。
4.网片涂层应均匀光滑,连续,无孔隙,裂缝,脱皮及其它缺陷。
5.通用运输机场钢筋网顶部“V”型网片以卡环与下部网片相连,以防盗螺栓组与立柱相连。
6.刺丝笼与钢筋网顶部“V”型网片以卡环相连。
7.土基及开槽两侧的回填土要求:土基墩实度不小于93%,回填土密实度不小于93%。
8.砂砾石层压实度不小于95%(重型击实)。
9.通用运输机场防攀爬隔离网立柱与钢筋网、立柱与斜撑及立柱与延伸臂的连接采用防盗形式并经防腐处理,围界金属防腐年限不小于8年。
上一篇:民用运输机场钢筋网围界大门制作规范 下一篇:Bf-Em-B1钢板网防抛网生产厂家
相关新闻
- 2025-02-18道路护栏的保护方法
- 2023-05-16广州绕城高速公路防眩网项目
- 2023-05-16宁夏高速公路焊接网隔离栅技术图纸支持
- 2023-05-16G331线布尔津至哈巴河公路刺钢丝隔离栅图纸
- 2023-02-25监狱刀刺网围墙生产厂家




