新疆伊犁高速公路刺铁丝隔离栅价格多少钱一米
更新日期:2022-11-11 点击量:

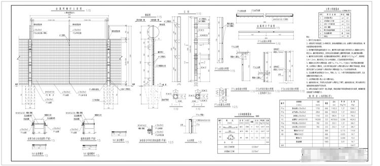
新疆伊犁高速公路刺铁丝隔离栅设计要求:
1、本图刺铁丝隔离栅尺寸均以毫米为单位。
2、刺铁丝隔离栅采用12号镀锌剌铁丝,刺距10cm。
3、刺铁丝隔离栅挂钩与槽钢立柱焊接,刺铁丝拉上后用12号镀锌铁丝将其绑扎在铁钩上。
4、刺铁丝隔离栅立柱每隔99米在立柱两侧加纵向斜撑,每198米或隔离栅改变方向处,在立柱三个方向加斜撑。
5、刺铁丝隔离栅立柱用56X50X2.5冷弯边槽钢,斜撑用49X50X2.5冷弯边槽钢。
上一篇:广西高速公路刺钢丝隔离栅多少钱一米 下一篇:热镀锌浸塑金属防护网价格多少钱一米
相关新闻
- 2025-02-18道路护栏的保护方法
- 2023-05-16广州绕城高速公路防眩网项目
- 2023-05-16宁夏高速公路焊接网隔离栅技术图纸支持
- 2023-05-16G331线布尔津至哈巴河公路刺钢丝隔离栅图纸
- 2023-02-25监狱刀刺网围墙生产厂家




