引江济淮工程铁丝网围栏价格多少钱一米
更新日期:2022-11-11 点击量:

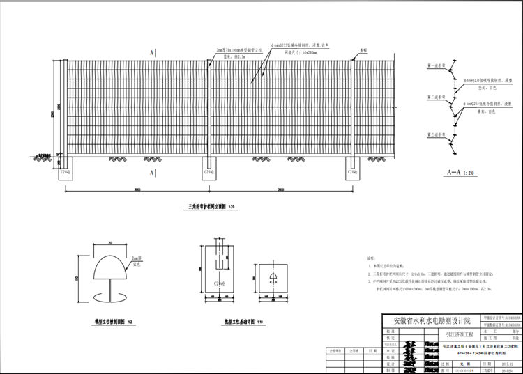
引江济淮工程铁丝网围栏构造说明:
1、本图尺寸单位为毫米;;
2、三角折弯护栏网网片尺寸: 2.0x3.0m,三道折弯,通过链接附件与桃型钢管立柱固定。
3、引江济淮工程铁丝网围栏网片采用Q235低碳冷拔钢丝焊接后经过液压成型,钢丝采取浸塑防腐处理,护栏网网片网格尺寸60mmx200mm,2mm厚桃型钢管立柱尺寸: 70mmx 10mm,高2.3m。
上一篇:水库饮用水源地隔离网生产参数 下一篇:浸塑围栏价格多少钱一米
相关新闻
- 2025-02-18道路护栏的保护方法
- 2023-05-16广州绕城高速公路防眩网项目
- 2023-05-16宁夏高速公路焊接网隔离栅技术图纸支持
- 2023-05-16G331线布尔津至哈巴河公路刺钢丝隔离栅图纸
- 2023-02-25监狱刀刺网围墙生产厂家




