水库隔离网多少钱一米
更新日期:2022-08-11 点击量:

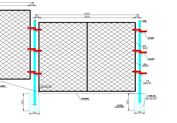
水库隔离网一般说明:
1、本图尺寸比例为1:15。
2、图中尺寸单位为mm。
3、水库隔离网立柱采用C25混凝土现浇。
4、水库隔离网孔的规格为100mmx100mm,隔离网片采用Q235低碳冷拉钢丝电焊网(或勾花网),钢丝直径5mm。网片钢丝采用镀锌钢丝,其力学性能须符合GB343-94中对镀锌钢丝的相关要求。立柱、立柱钢板、边框、网片连接件采用A3钢;立柱与立柱钢板、边框与网片均采用电焊接,立柱与立柱钢板焊脚高度10mm,焊接牢固。所有钢材力学性能应符合GB700-88要求,焊接部位要求过渡光滑,无夹渣,无虚焊,无气孔等缺陷,构件焊接成型后的整体曲翘度横向不得大于7mm,纵向不得大于5mm。立柱、立柱钢板、边框、网片及网片连接件均采用先热浸镀锌再浸塑的防腐处理措施,浸塑层厚度0.6mm,颜色为深绿色。
5、本图型式适用于清表后覆盖层厚度小于1.2m路段。
相关新闻
- 2025-02-18道路护栏的保护方法
- 2023-05-16广州绕城高速公路防眩网项目
- 2023-05-16宁夏高速公路焊接网隔离栅技术图纸支持
- 2023-05-16G331线布尔津至哈巴河公路刺钢丝隔离栅图纸
- 2023-02-25监狱刀刺网围墙生产厂家




