新型围网-钢板网围网技术参数
更新日期:2022-08-11 点击量:

新型围网一般说明:
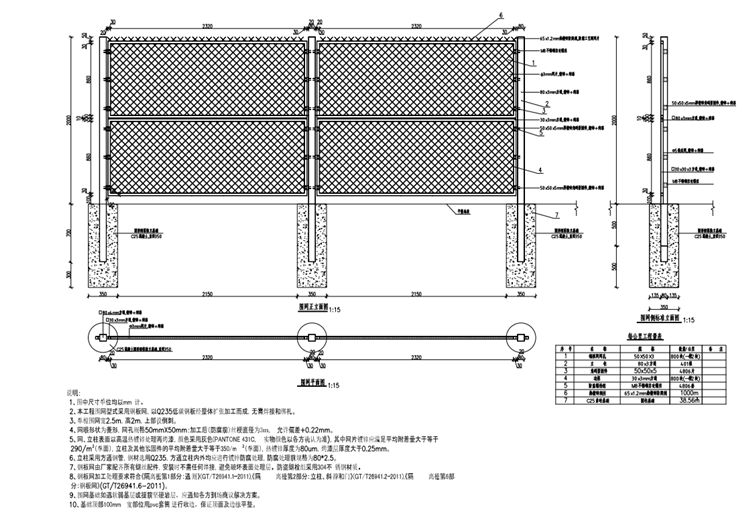
1、图中尺寸单位均以mm计。
2、本工程围网型式采用钢板网,以Q235低碳钢板经整体扩张加工而成,无需焊接和绑扎。
3、单樘围网宽2.5m,高2m,上部设倒刺。
4、网眼形状为菱形,网孔规格50mmX50mm;加工后(防腐前)丝梗直径为3mm,允许偏差+0.22mm。
5、网、立柱表面以高温热镀锌处理再烤漆,颜色采用灰色(PANTONE 431C,实物颜色以各方确认为准),其中网片镀锌应满足平均附着量大于等于290/㎡(单面),立柱及其他紧固件的平均附着量大于等于350/㎡(单面), 热镀锌厚度为80um,烤漆层厚度大于0.25mm。
6、立柱采用方通钢管,钢材选用Q235,方通立柱内外均应进行镀锌防腐处理,防腐处理前规格为80*2.5。
7、钢板网由厂家配齐所有螺丝配件,安装时不需任何焊接,避免破坏表面处理层。防盗螺栓组采用304不锈钢材质。
8、钢板网加工处理要求符合《隔离栅第1部分:通则》(GT/T26941.1-2011),《隔离栅第2部分:立柱、斜撑和门》(GT/T26941.2-2011),《隔离栅第6部分:钢板网》(CT/T26941.6-2011)。
9、围网基础如遇软弱基层或坚硬岩层,应通知各方到场商议解决方案。
10、基础项部100mm宽部位用pvc套筒进行收边,保证顶面及边缘平整
上一篇:钢筋网刺铁丝围界造价多少钱一米 下一篇:电焊网防落物网制造生产
相关新闻
- 2025-02-18道路护栏的保护方法
- 2023-05-16广州绕城高速公路防眩网项目
- 2023-05-16宁夏高速公路焊接网隔离栅技术图纸支持
- 2023-05-16G331线布尔津至哈巴河公路刺钢丝隔离栅图纸
- 2023-02-25监狱刀刺网围墙生产厂家




